区分所有建物

小金井中町マンション

若手建築士によるリノベーション

募集中
  • 小金井中町マンションの写真1
  • 小金井中町マンションの写真2
  • 小金井中町マンションの写真3
  • 小金井中町マンションの写真4
  • 小金井中町マンションの写真5
  • 小金井中町マンションの写真6
  • 小金井中町マンションの写真7
  • 小金井中町マンションの写真8
  • 小金井中町マンションの写真9
  • 小金井中町マンションの写真10

アクセス

  • JR中央線 武蔵小金井 まで徒歩 12分
  • JR中央線 東小金井 まで徒歩 13分
価格:
4,850万円
面積:
62.18㎡(壁芯)
竣工:
1977年11月
建築士である所有者が自らリノベーションした一室です。(以前に賃貸物件「さくらこみち」にお住まいだったときの取材記事はこちら
中央線の東小金井駅と武蔵小金井駅の間に位置する全57戸の中規模マンション。少し足をのばせば南には野川、北には玉川上水が流れ、都立公園の中でも最大規模の小金井公園も近くにあります。豊かな自然と穏やかな住環境が魅力のエリアです。
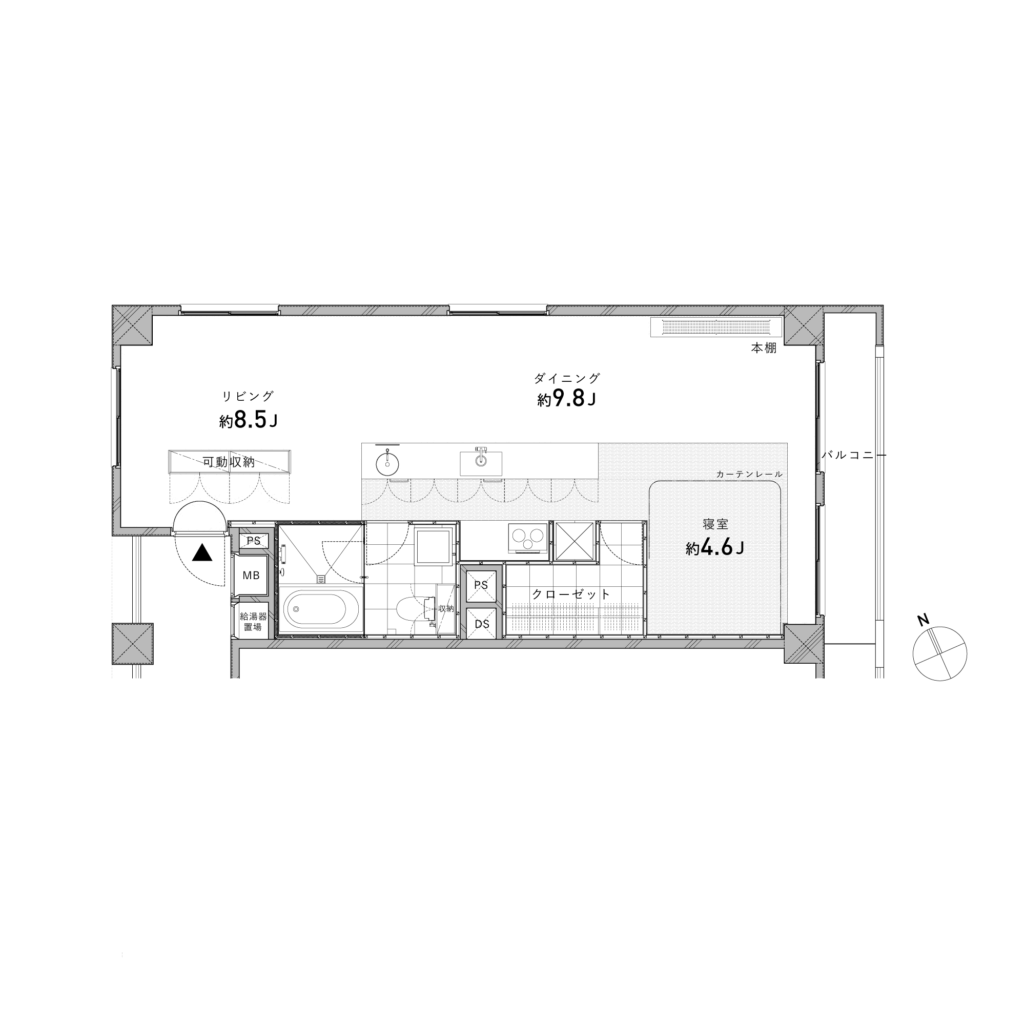
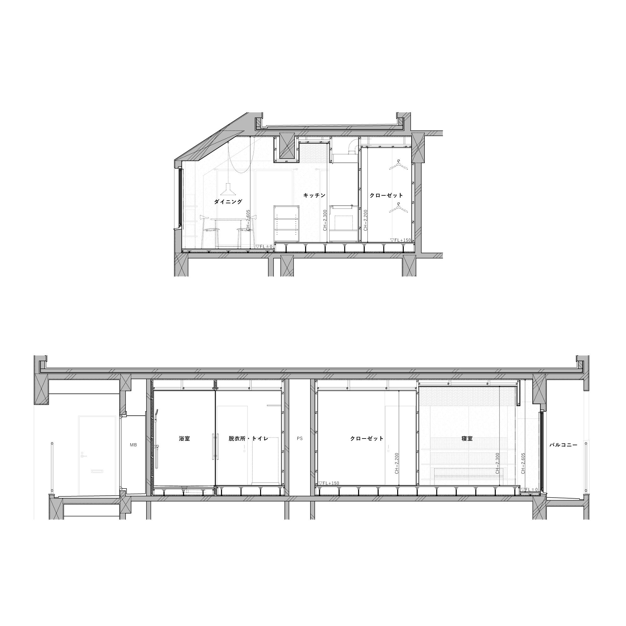
室内を区切らずにL字型の広いワンルームとすることで、部屋のどこにいても沢山の窓が見える、角部屋のメリットを最大限に活かした気持ちの良い空間になっています。可動収納を使えば玄関を作ったり、リビングとダイニングを緩やかに分けることも出来ます。L字型の間取りの奥は小上がりになった寝室で、壁で囲まずにカーテンで区切る仕様。2LDKのような個室の多い間取りでは寝室はただ夜に睡眠をするだけの閉じられた空間になりがちですが、寝室を開くことで、空間が広く見えるだけでなく、日中でも使用できそうな多目的な空間になります。(ベッドに腰掛けたり横になってちょっと休んだり、洗濯物をベッドに並べて畳んだり、手前の小上がりの部分で床座を楽しんだり)
キッチンをぐるっと回ることが出来る動線で廊下がなく、例えば二人暮らしなら室内を移動するたびにお互いの様子が伺え、自然と会話も弾みます。二人がそれぞれが好きな居場所を見つけて、1日という時間軸の中で室内を小さく移動しながら暮らす。カフェ、図書館、映画館、シェアオフィス、ホテルなど、1日の中で細切れに時間を過ごす施設をぎゅっと家の中に集めた、自分だけの小さな街のような住まいです。
 
-
夫婦の住まいとして計画した、マンションの⼀室リノベーションである。もともとはLDKと3つの個室による、各居室が分節された構成であったが、ワンルームの居室に組み替えた。3⽅向に開いた5つの窓からは、季節や時間、その⽇の天気によって、内部に届く光の質が刻々と変化する。東から西へ、グラデーション状に色合いを変化させたカーテンは、各窓から入る光と共鳴する。ワンルームであることによって、どの場所で過ごしていても、変化する光を楽しめるようにした。 共働きでリモートワークも多い夫婦⽣活において、共に過ごすこともあれば、別々に過ごすこと、来客を交えた打合せや撮影スタジオとしての使⽤も想定された。リビング、ダイニング、ライブラリといった⻑時間過ごすエリアは、床を既存のFLより50mm下げ、天井は既存の打込み⽊⽑セメント板現しとし、気積を最⼤化させた拡がりのある空間とした。対して、⼀時的に過ごす洗⾯所やキッチン、夜間のみ過ごす寝室エリアは既存のFLより100mm上げ、天井⾼を抑え、安⼼感のある空間とした。その2つの異なった質を持つ空間は小上りや垂壁、カウンターといった、緩やかな境界で接している。また、リビングと⽞関の境に置いた可動式収納はリビングとダイニング間に移すことで、空間を2つに切り分けることも可能である。寝室はカーテンによる間仕切りとしているので、昼間は開け放つことで室内にさらなる拡がりをもたらしてくれる。ワンルームではあるものの、様々な暮らしのスタイルに合わせられるよう、その時々において相応しい場所を選んだり、部分的に閉じたり開いたり、柔軟性のある使い⽅ができるようにした。住⼾は隣地境界線に近接しているため、斜線制限により斜め梁を用いていたが、その個性が生きるよう、斜め梁が途切れることなく室内に現れるようにした。(STUDIO BOKSTON一級建築士事務所)
小金井中町マンションの間取り1
小金井中町マンションの間取り2
小金井中町マンション (コガネイナカマチマンション)
東京都小金井市中町3-22-10 MAP
  • JR中央線 武蔵小金井 まで徒歩 12分
  • JR中央線 東小金井 まで徒歩 13分

土地情報

面積:
1768.99㎡(共有持分5773/296179)
権利:
所有権
用途地域:
第1種中高層住居専用地域

建物情報

種類:
居宅
面積:
62.18㎡(壁芯)
構造規模:
鉄筋コンクリート造陸屋根 5階建
総戸数:
57戸
所在階:
2階
管理費等:
管理費:11,370円、修繕積立金:17,055円(合計:28,425円)※外部区分所有者の場合は外部協力金が月額2,500円)
管理方式:
一部委託、日勤
設計:
STUDIO BOKSTON一級建築士事務所(室内リノベーション)
施工:
株式会社間組
現況:
居住中
引渡:
相談(契約3ヶ月後を目安)
備考:
駐車場:空き無し(2025.12.9現在)、駐輪場:自転車・バイク(空き状況、金額は問い合わせ)
エレベーターあり
ペット飼育禁止
2021年大規模修繕工事実施済み
2024年室内フルリノベーション済み(キッチン、浴室、給湯器、床、壁、配管など一式)
室内設備(IH3口コンロ、エアコン1基、洗浄暖房便座、追焚き、浴室乾燥機、TVモニター付きインターホン、など)
取引態様:
媒介
情報更新日:
2026年2月7日
次回更新予定日:
2026年2月21日

お気に入り物件