本蓮沼の新築物件~内覧会の受付を開始しました!~
板橋区蓮沼町に計画中の新築物件「(仮称)本蓮沼プロジェクト」が12月に内覧会を実施することとなりました!気になる方は是非チェックしてみてください。
Table of Contents
(仮称)本蓮沼プロジェクトって?
本プロジェクトは「Desk-A Design Office + etoa studio」が設計する木造3階建ての集合住宅です。計14戸のプランですが、全て違った間取りです。
中庭をぐるっとお部屋が取り囲み、どの部屋も2面採光となっています。中には3面採光のお部屋もありますよ!

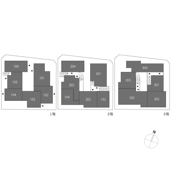
詳細な間取りはこちらから。ページの下の方で全部屋の間取りをご確認いただけます。
スケジュールについて
今後のスケジュールは下記の通りです。少し先になりますが、入居可能日の1ヶ月前にはお部屋を見ることができます!
〇12月13日(土)、12月20日(土)内覧会実施
〇12月末竣工
〇1月16日(金)以降で入居可能
内覧会のご案内
12月13日(土)、12月20日(土)の2日程で内覧会を実施します。各日10時~16時(最終受付15時)でご案内いたします。
[予約枠]
・10:00~11:00
・11:00~12:00
・12:00~13:00
・13:00~14:00
・14:00~15:00
・15:00~16:00
1時間の内見枠となりますので、お好きなお部屋を複数見て比べることができますよ。図面や写真では分からない、現地だからこそ分かるお部屋の良さをたくさん見つけてみてください。
お部屋は一部工事中の予定ですが、先日撮影した写真よりも完成に近い形のお部屋を見ることができます。
(103号室を玄関から見た様子↓)

(204号室をキッチン側から居室全体を見た様子↓)

(水回りから居室全体を見た様子↓)

今後も室内写真は更新予定ですので、情報更新まで今しばらくお待ちください。
事前申込みについて
12月13日(土)の内覧会に参加できるお客様に限り、【事前申込み】という仮のお申込みを受け付けます。
内見前に事前申込みをいただいておりますと、事前申込みをしていない方よりも内見後のお申込みを優先させていただく事が可能です。
~事前申込みの流れ~
-------------------------
1)申込みフォームのご提出
専用のwebフォームをご入力いただき、11/30(日)までにご提出をお願いいたします。
※事前申込みのご意向を確認できましたら、申込みフォームをお送りします。
※事前申込みは先着順ではございません。同じお部屋に複数事前申し込みが入った場合には同時審査となります。
2)12/13(土)の内覧会に参加
実際にお部屋を見ていただき、12/15(月)までに「申込継続orキャンセル」のご返答をお願いします。
※キャンセルの場合でも費用はかかりません。
3)申込継続の場合は貸主審査へ
-------------------------
事前申込みの締切は【11/30(日)】で、第一希望のお部屋にのみお申込みが可能です!
内覧会への参加をご検討中の方、お部屋の仕様が気になる方は是非お問い合わせください。
皆さんからのお問い合わせお待ちしております。
demi