さくらこみち B
1階→ロフト→2階→ルーフバルコニー
お気に入り
申込み有
アクセス
- JR中央線 東小金井 徒歩 15分
- JR中央線 東小金井 バス 4分
- JR中央線 三鷹 バス 27分
- 賃料:
- 155,000円
- 面積:
- 51.18㎡㎡
- 共益費:
- 4,000円
- 竣工:
- 2020年3月
- 状況:
- 空室 ( 1月下旬入居可能 )
屋上テラスが贅沢な、メゾネットタイプのお部屋です。
1階は3.6帖の寝室。少し掘り下げた半地下になっていて、吹き抜けがあり窓が大きいので広さを感じられます。1階の中央には洗面台と浴室があります。また2階へ上がる階段下の空間には天井にハンガーパイプが並んでいて、ウォークインクローゼットのようになっています。
2階に上がる階段の途中には約4帖のロフトが設けられています。広さがあるため、沢山のものを置いておくことができます。
さらに階段を上がって2階へ進むと、12.7帖の広々としたリビング・ダイニングが現れます。窓も大きく、晴れた日は明るく気持ちの良い空間になります。中央に階段があるため、ダイニングスペースとリビングスペースに分けて使うことが出来ます。
一番の個性であるルーフバルコニーは、階段をさらに上った先に現れます。約10㎡あるこちらのスペースでは、洗濯物を干すほか、アウトドアのテーブルセットを置いて、コーヒー片手に読書するのも良いかもしれません。


周辺環境
東小金井駅から徒歩15分の立地です。物件のそばにバス停もあり、駅から乗車4分ほどで着くことができます。駅周辺は駅ビル「nonowa」の他、スーパーや薬局、コンビニ等が揃っています。物件周辺は都立小金井公園をはじめ、緑が多く残るエリア。周辺に高い建物もあまり無く、休日には自然を感じながらゆったりと過ごしたい方におすすめです。大通りは自転車走行レーンも整備されているので、サイクリングがお好きな方にも良いかもしれません。
-
最寄りの東小金井駅北口。中央線快速を利用し、吉祥寺まで7分、中野まで18分、新宿まで22分で行くことができます。駅ビルの他、駅近くには25時まで営業しているスーパーもあります。もちろんコンビニも数店舗あります。 -
駅から物件まで続く大通りには自転車走行レーンが整備されています。サイクリングがお好きな方にもおすすめです。 -
ハムとソーセージの名店「ケーニッヒ」。販売だけでなく、2階のレストランで食事もできます。ホットドッグとビールをテイクアウトするのも良いですね。 -
オーナーさんもおすすめの「サクラキッチン」。ヘルシーな一汁三菜のランチメニューがとっても美味しいです。お惣菜の販売もしていて自炊のプラス一品にも使えそう。
-
物件の北側にある「都立小金井公園」。公園内には江戸東京たてもの園のほか、体育館やテニスコートもあり、休日はスポーツを楽しむことができそう。物件の西側には「浴恩館公園」という公園もあり、緑が身近なエリアです。 -
物件北側を流れる玉川上水。その流れに沿うように「江戸の農家みち」と呼ばれる直売所が続いています。休日は早起きして、野菜や果物を探しに行くのも楽しそう。
空室 ( 1月下旬入居可能 )
さくらこみち (サクラコミチ)
部屋番号:B
東京都小金井市緑町2-16-21
MAP
- JR中央線 東小金井 徒歩 15分
- JR中央線 東小金井 バス 4分
- JR中央線 三鷹 バス 27分
- 賃料:
- 155,000円
- 面積:
- 51.18㎡㎡
- 共益費:
- 4,000円
- 竣工:
- 2020年3月
- 契約形態:
- 普通借家契約
- 契約期間:
- 2年間
- 敷金:
- 賃料の1ヶ月分
- 礼金:
- 賃料の1ヶ月分
- 償却:
- 賃料の1ヶ月分
- 更新料:
- 新賃料の1ヶ月分
- 仲介手数料:
- 賃料の1.1ヶ月分(税込)
- 損害保険料:
- 当社指定火災保険要加入
- 設備:
- CATV TVモニター付きインターフォン エアコン(2基) ガスコンロ(4口) 洗浄便座 暖房便座 追い焚き 浴室乾燥機 バルコニー ルーフバルコニー:9.67㎡
- 駐車場:
- 駐車場なし
- 自転車駐輪:
- 空き有り (各戸1台まで駐輪可(無料))
- バイク駐輪:
- 駐輪場なし
- 仕上げ:
- 床:
- フローリング、塩ビタイル、モルタル土間
- 内壁:
- ラワン合板、クロス
- 天井:
- ラワン合板、クロス
- 備考:
- ■住居限定
■建物・敷地内禁煙
■保証会社利用:必須
○初回保証料
月支払合計額の50%
○月次保証料
1,000円(毎月)
- 設計:
- 田岡博之建築設計事務所
- 施工:
- キューブワン・ハウジング
- 構造:
- 木造
- 規模:
- 2階建
- 戸数:
- 4戸
- 取引態様:
- 専任媒介
- 情報更新日:
- 2025-12-20 15:23:25
入居までの流れ
間取り別の空室・募集中一覧
-
51.18㎡㎡
お気に入り物件
※条件が含まれる部屋が一部屋でもある場合は、該当の物件が表示されます。
設計者のコメント
緑の多く残る武蔵野で親子二代に渡り受け継がれてきた二棟に並ぶアパート、その建て替え計画にあたり、二年をかけて敷地の環境を読み解いていった。解体前の半年は一室をお借りして事務所を移転し、空への広がりや土の庭の匂い、隣地間や道路の先に垣間見える往来や植樹林など、敷地を超えて広がる武蔵野の風景を感じながら計画を練った。
配置計画はかってのアパートと同じ分棟に近い形式とし、周囲の住宅の大きさに馴染ませながら環境をそのまま引き継いでいる。建物の外壁は、近隣の緑地内に残る昭和期の施設(浴恩館)を参考とし、草木の彩りが映え、季節や天候によって表情が変わる黒い小波のガルバリウムとしている。近くには「江戸の農家道」と呼ばれる直売所が並ぶ通りがあり、庭先で野菜を洗える水場とベンチをアプローチとなるこみちに設けた。こみちを奥へと進むと枝分かれするように各住戸の玄関に辿り着き、そのみちは玄関を通り抜けて庭へと続いている。
建蔽率から敷地の6割となる空地は建築以上に環境を左右する。武蔵野古来の樹種に五感をたのしませてくれる種を織り交ぜつつ、土と石の地面をつくり、緑地としての環境形成を図っている。
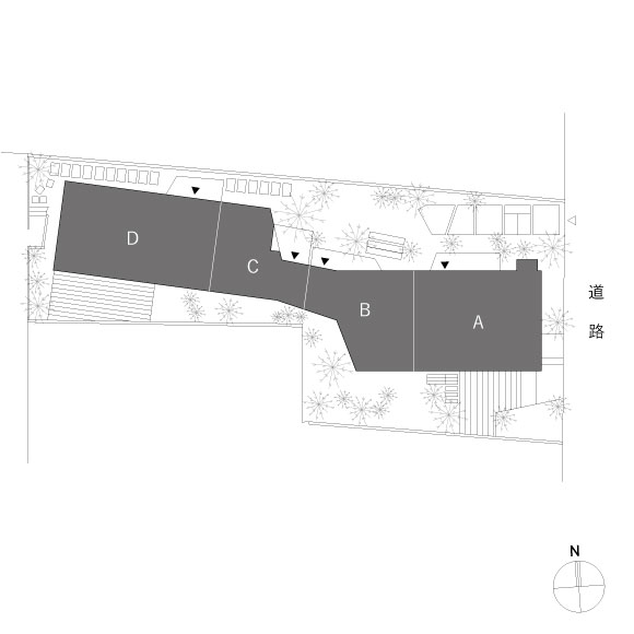
敷地の中にも環境差があり特徴がある。4つの住戸は敷地内外に広がる武蔵野の風景の特徴と呼応するように、全てが異なるプランになっている。開口部はそれぞれの場所の環境に応じて設けられており、外観に並ぶ開口部の様相は周囲の環境を投影した姿でもある。
住戸は間仕切りを使わず大きな間と小さな間の二つをメゾネット形式の階で分けることで部屋を構成している。各戸に設けたロフトは、リビングや庭を見下したり、切り妻屋根に浮いたような床など、暮らしの幅を広げてくれる場所となる。
A住戸は、玄関からキッチンを抜けて庭まで続く大きな土間を持ち、吹き抜けが明るく陽を呼び込む。
B住戸は、庭に埋まるような視点の部屋から、奥多摩の山々を臨む屋上テラスまで高さの変化に富んでいる。
C住戸は、庭木の梢と同じ2階レベルでリビングとテラスが繋がり、こみちに寄り添う家となっている。
D住戸は、こみちの一番奥にあり、玄関土間からリビングを抜けてデッキテラスまでがフラットに繋がる。
このどれもがお互いの環境を共有しながら、新たな武蔵野の風景をつくっている。
土地と人にゆったり流れる時間を繋ぐように、解体時に残しておいた既存の木製ガラス戸を各部屋で使い、庭石には施主の故郷の長野の石を配し、環境と記憶も継承していける建築となることを思いながら計画した。
「さくらこみち」という名前は施主の提案である。建物というものの名前ではなく玉川上水のさくら並木に繋がる「みち」という新しい場所ができたことを、最後に施主が自作でさくらの木彫看板をかけて形にしていただいた。(田岡博之建築設計事務所)
※田岡博之建築設計事務所のHPはこちら。
※さくらこみちの植栽を手掛けた小林賢二さんのHPでも紹介されています。
※お部屋訪問のブログ記事も是非ご覧下さい。